• mneu
  • menu
  • menu
  • menu

 

  Arihant House
 

Brief

specer

Master Plan

specer

Unit Plan

specer

Specification

specer

Amenities

specer

View On map

 
 

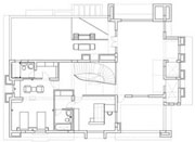
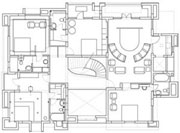
The house interior is showing the Saga of success. The simplicity and elegance of the family is reflected into the design of each area. The designs of common areas are tied with a common tie making it simple and elegant while individual rooms are showing taste and personalities.

 

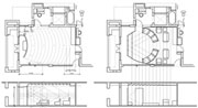
The House is clearly divided and demarcated in private and common areas by a staircase. House has Living Room, Family Living, Kitchen, Dining, T. V. Room, Sports Room and Nine Bedroom. All areas have their service areas such as porches, lobbies, staircase, Store, Washing, Balconies, Drawing Area, Green Area, Wash Rooms and Basins. House starts from First Floor. Ground Floor consists of Pooja Room, Electric Room, Servant Rooms, Steam Bath, Gymnasium, Grain Stores and Parking.

 
 



Service
Interior Design

Developers
NA

Architect
Kishor Trivedi
 
Interior Designer
Mayank Dhulia
 
Structure Engineers
Sunil Gandhi
 
Total Units

NA

Start

2004

Completion

2005

Location of Project

Nr. Crystal Mall, Kalawad Road

City
Rajkot